| Data realizacji: | 2011 |
| Mój udział: | Projekt wielobranżowy do uzyskania decyzji o pozwoleniu na budowę. |
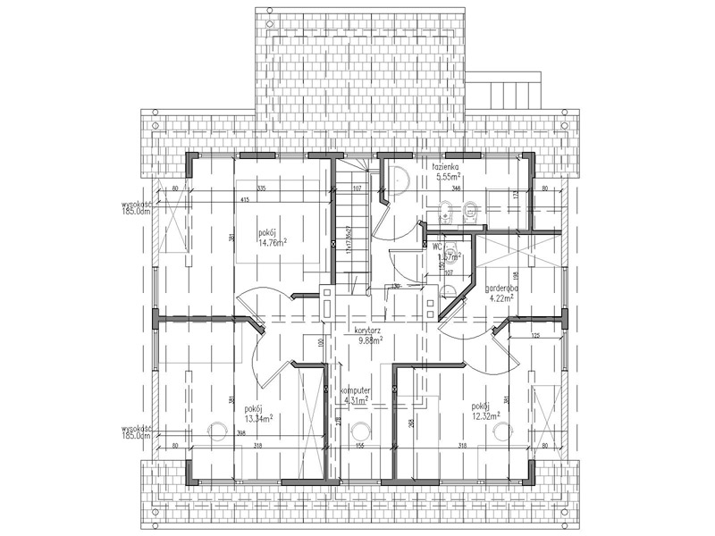
Projekt przebudowy poddasza, jego ocieplenia i aranżacji nowych pomieszczeń mieszkalnych.
Instalacje: inż. Janusz Bartuś i inż. Władysław Dzierżęga


ul. Wilanowska 16/20 m. 68
00-422 Warszawa
telefon: +48 501 231 097
mail: tomasz (at) atbartus.pl
Jeśli potrzebujesz więcej informacji - zadzwoń lub napisz, jestem do dyspozycji
Ten obrazek z kodem QR zawiera wszystkie moje dane kontaktowe w formacie VCard: