| Data realizacji: | 2006 |
| Mój udział: | Projekt koncepcyjny. Spółdzielnia sądowała możliwości powiększenia swojego zasobu mieszkaniowego. |
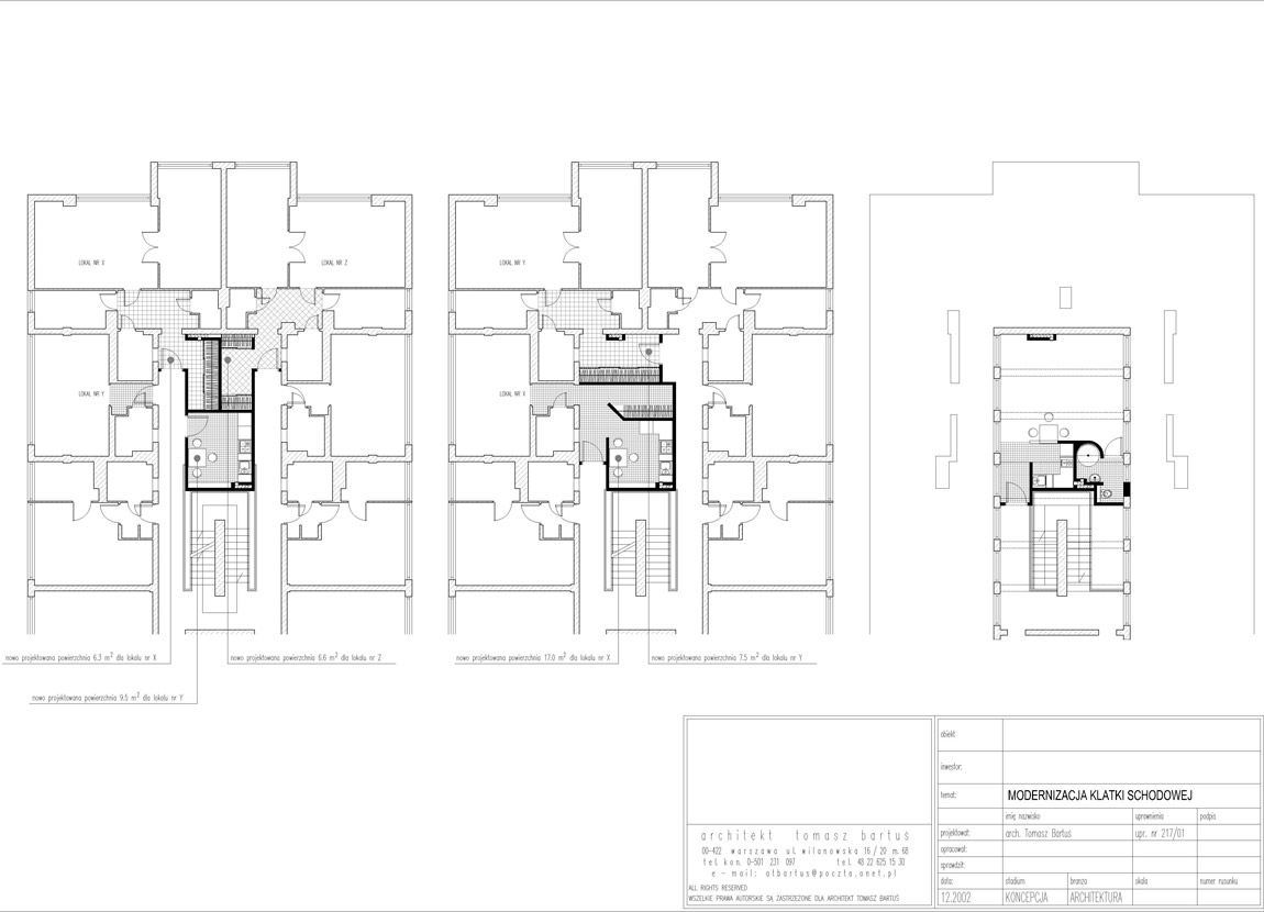
Spółdzielnia Budowlano Mieszkaniowa Pracowników Kultury zleciła wykonanie koncepcji nadbudowy na istniejącym budynku przy ul. Francuskiej wraz z wykorzystaniem na niższych kondygnacjach przestrzeni klatki schodowej na rozbudowę mieszkań.



ul. Wilanowska 16/20 m. 68
00-422 Warszawa
telefon: +48 501 231 097
mail: tomasz (at) atbartus.pl
Jeśli potrzebujesz więcej informacji - zadzwoń lub napisz, jestem do dyspozycji
Ten obrazek z kodem QR zawiera wszystkie moje dane kontaktowe w formacie VCard: